Counter-Slope House / YH2 Architecture

Counter-Slope House / YH2 Architecture - Image 2 of 25Counter-Slope House / YH2 Architecture - Interior Photography, Kitchen, Wood, Table, Chair, CountertopCounter-Slope House / YH2 Architecture - Image 4 of 25Counter-Slope House / YH2 Architecture - Image 5 of 25Counter-Slope House / YH2 Architecture - More Images+ 20

  • Architects: YH2 Architecture
  • Area Area of this architecture project Area:  4530 ft²
  • Year Completion year of this architecture project Year:  2024
  • Photographs
    Photographs:Maxime Brouillet
  • Lead Architects: Marie-Claude Hamelin, Loukas Yiacouvakis
More SpecsLess Specs
Counter-Slope House / YH2 Architecture - Image 6 of 25
© Maxime Brouillet

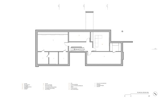
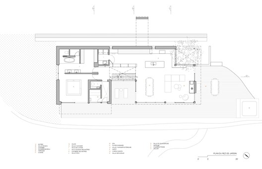
Text description provided by the architects. Situated on the southern shore of Lake Memphremagog, in the region of Potton, this residence engages with a landscape of striking geographical and atmospheric intensity. The site, defined by a steep incline descending toward a narrow strip of shoreline, is frequently cast in the shadow of the surrounding mountains, generating an ambiance at once archaic and contemplative. The architectural project emerges as a response to this dramatic setting — an attempt to co-inhabit the terrain with discretion and reverence.

Content Loader

Project gallery

See allShow less
About this office
Cite: "Counter-Slope House / YH2 Architecture" 16 Mar 2026. ArchDaily. Accessed . <https://www.archdaily.com/1039563/counter-slope-house-yh2-architecture> ISSN 0719-8884

You've started following your first account!

Did you know?

You'll now receive updates based on what you follow! Personalize your stream and start following your favorite authors, offices and users.