
-
Architects: Tésa architetture
- Area: 140 m²
- Year: 2026
-
Photographs:Riccardo Sforzi

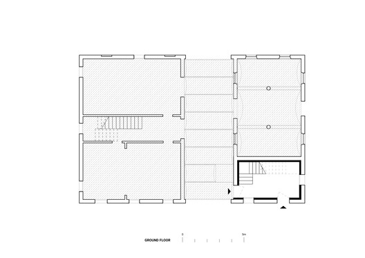
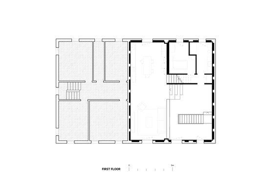
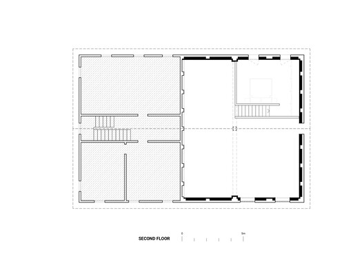
Text description provided by the architects. Casa NP is the renovation of an abandoned barn, part of the original nucleus of an old agricultural company founded at the beginning of the last century, located south of Carpi along the road towards Modena. The project, started in 2022 and completed at the beginning of 2026, transforms rural architecture into a contemporary habitable space without losing its original character.

























