
-
Architects: Manuel Bouzas, salazarsequeromedina
- Year: 2026

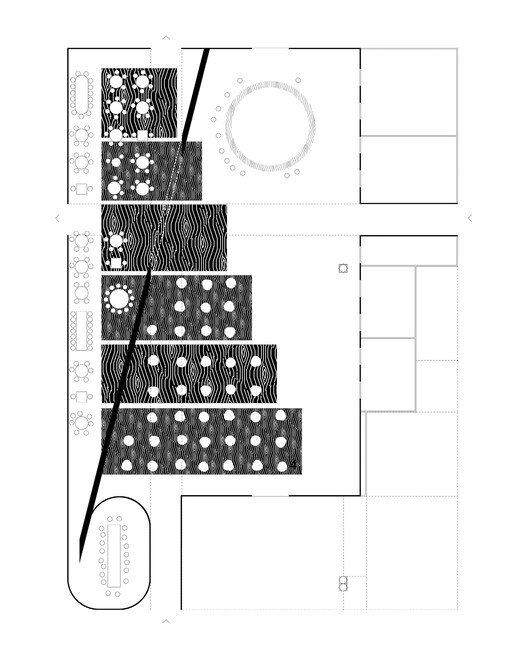
Text description provided by the architects. The 45th edition of ARCO 2026 takes as its central theme “two spaces within the fair.” Our proposal responds to this duality: on the one hand, a constructed space—the Guest Lounge—and on the other, an evoked space—the forests of the northwestern Iberian Peninsula that burned uncontrollably this past August.























