Trommel Apartment / PLNLstudio

Trommel Apartment / PLNLstudio - Interior Photography, Dining room, Wood, Table, Lighting, ChairTrommel Apartment / PLNLstudio - Interior Photography, Kitchen, CountertopTrommel Apartment / PLNLstudio - Image 4 of 23Trommel Apartment / PLNLstudio - Interior Photography, Wood, Shelving, ChairTrommel Apartment / PLNLstudio - More Images+ 18

  • Architects: PLNLstudio
  • Area Area of this architecture project Area:  60
  • Year Completion year of this architecture project Year:  2025
  • Photographs
    Photographs:Riccardo de Vecchi
  • Manufacturers Brands with products used in this architecture project
    Manufacturers:  Forbo Flooring Systems, Efapel, Winckelmans
More SpecsLess Specs
Trommel Apartment / PLNLstudio - Interior Photography, Dining room, Wood, Table, Lighting, Chair
© Riccardo de Vecchi

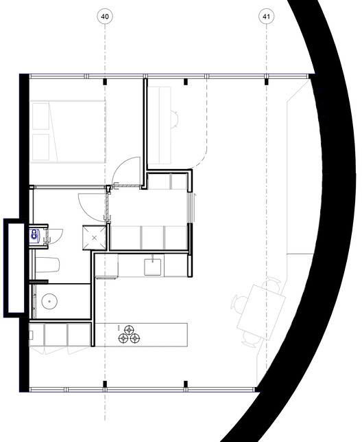
Text description provided by the architects. Trommel project is a 60sqm interior tuned to tank geometry - raw concrete, custom joinery and translucent screens that redistribute daylight across the compact plan.

Content Loader

Project gallery

See allShow less
About this office
Cite: "Trommel Apartment / PLNLstudio" 30 Apr 2026. ArchDaily. Accessed . <https://www.archdaily.com/1039531/trommel-apartment-plnlstudio> ISSN 0719-8884

You've started following your first account!

Did you know?

You'll now receive updates based on what you follow! Personalize your stream and start following your favorite authors, offices and users.