Convento do Beato Residential Complex / RISCO

Convento do Beato Residential Complex / RISCO - Exterior Photography, BalconyConvento do Beato Residential Complex / RISCO - Image 3 of 40Convento do Beato Residential Complex / RISCO - Interior Photography, WoodConvento do Beato Residential Complex / RISCO - Image 5 of 40Convento do Beato Residential Complex / RISCO - More Images+ 35

  • Architects: RISCO
  • Area Area of this architecture project Area:  18000
  • Year Completion year of this architecture project Year:  2024
  • Manufacturers Brands with products used in this architecture project
    Manufacturers:  Geberit, JUNG, Jansen, Saint-Gobain, iGuzzini, AM&G Carpintaria, Assa Abloy , Baxi, Bindopor, Bosch, CS Coelho da Silva, Carpilux, Catalano, Cerâmica Aleluia, Cerâmica Vale da Gândara , DONGSIHN POLYMER, Duravit, FENESTEVES, Fermax, Flos, +18
  • Architecture: Tomás Salgado
  • Collaborators: Cristina Picoto, Duarte Silva, Francisco Lebreiro, Inês Fonseca, Inês Melo, Inês Reis, João Almeida, Margarida Pires, Maria Sousa Martins, Peter Kornerup
  • Site Architect: Tomás Salgado, Inês Fonseca e Margarida Pires
  • Landscape: NPK
  • Structural Engineering : A2P
  • Electrical Engineering : SOPSEC, CAON
  • Light Design: Filamento
  • City: Lisbon
  • Country: Portugal
More SpecsLess Specs
Convento do Beato Residential Complex / RISCO - Exterior Photography
© Carolina Delgado

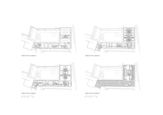
Text description provided by the architects. Located in the eastern part of Lisbon, the Convento do Beato originated from a small hermitage built in the 15th century, which later evolved into a convent that played a significant role in the religious, social, and economic life of the city.

Content Loader

Project gallery

See allShow less
About this office
Cite: "Convento do Beato Residential Complex / RISCO" [Conjunto residencial do Convento do Beato / RISCO] 20 Mar 2026. ArchDaily. Accessed . <https://www.archdaily.com/1039438/convento-do-beato-residential-complex-risco> ISSN 0719-8884

You've started following your first account!

Did you know?

You'll now receive updates based on what you follow! Personalize your stream and start following your favorite authors, offices and users.