
-
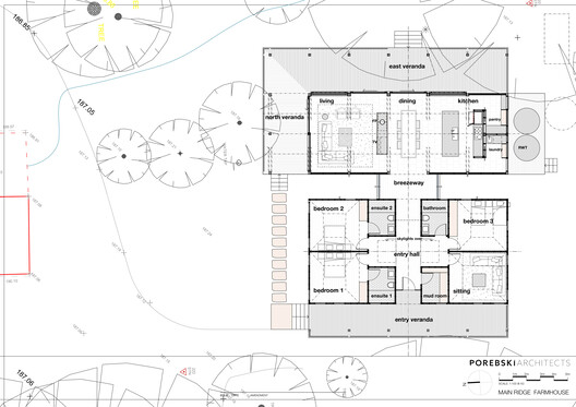
Architects: Porebski Architects
- Area: 195 m²
- Year: 2025
-
Photographs:Jack Lovel
-
Manufacturers: Knoll, Eames
-
Lead Architects: Alex Porebski

Text description provided by the architects. This timber-framed house, designed as a second home for longstanding Sydney clients, complements their newly acquired vineyard at Main Ridge. Rooted in a 20-year relationship, the project is rich in personal connection and shared vision.
















