
-
Architects: FELT architecture & design
- Area: 850 m²
- Year: 2025
-
Photographs:Olmo Peeters

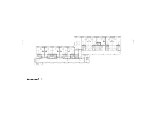
Text description provided by the architects. An existing villa forms the starting point for the transformation into a care home for people with mental health challenges. Stripped down to its bare structure, the house loses its roof and finishes, revealing the simple logic of parallel walls. This structure becomes the framework for a new plan, where a generous corridor connects a sequence of independent studios.




















