
-
Architects: Ateliê GR
- Area: 243 m²
- Year: 2024
-
Photographs:Nelson Kon
-
Manufacturers: Neorex, Permetal
-
Lead Architect: Gabriel Rodrigues Grinspum

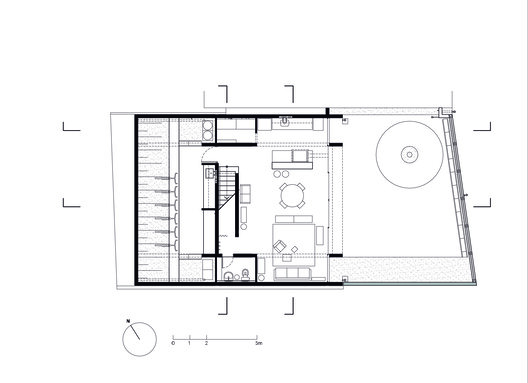
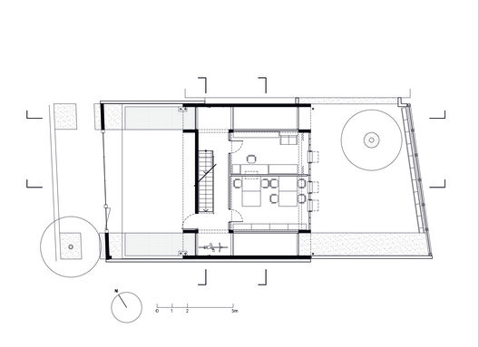
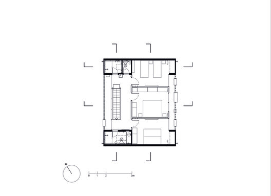
Text description provided by the architects. Located in an urban mixed-use lot, Casa Caetés is situated on a quiet street that balances residential and commercial use. The design was created for a large family with a "tentacular" configuration—a couple and five children—whose expanded connections demand a complex and interconnected spatial structure.


































