
-
Architects: Atelier ALL
- Area: 686 m²
- Year: 2022
-
Photographs:Siming Wu
-
Lead Architects: Liu Congxiao, Liu Xiao

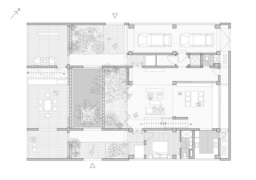
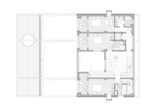
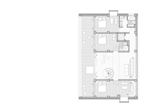
Text description provided by the architects. In the Chaoshan region, "Cuò" refers to residential dwellings, a term that not only denotes the physical space of a house but also extends to social connections like "厝边" (Cuò-biān, neighborhood). Xikoucuò is located on the outskirts of Teochow, on a uniformly planned new rural construction site. The plot is not far from the old village, adjacent to a branching stream. The residential plot faces the stream to the south and backs onto a planned rural road to the north. There is a height difference of about 4 meters on the stream side.









































