
-
Architects: NextOffice–Alireza Taghaboni
- Area: 910 m²
- Year: 2021
-
Photographs:Parham Taghioff
-
Lead Architects: Alireza Taghaboni

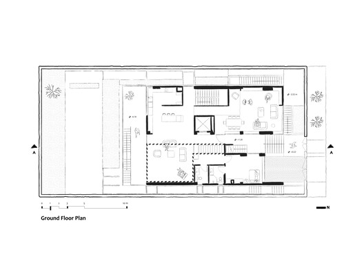
Text description provided by the architects. At first glance, the residential villa presents itself in continuity with the familiar typology of pitched-roof villas, aligning its overall silhouette with a well-known and recognizable architectural language. This deliberate choice allows the building to remain visually and conceptually connected to its surrounding context and to the conventional expectations associated with this type of dwelling. However, the project does not settle for mere repetition of an established model; instead, it seeks to extract new spatial possibilities from within this familiar framework. The approach is not based on rejecting the typology, but rather on reinterpreting and transforming it to generate a renewed architectural reading.















