Shahrzad Villa / Kanisavaran Office

Shahrzad Villa / Kanisavaran Office - Image 2 of 21Shahrzad Villa / Kanisavaran Office - Exterior Photography, Concrete, BalconyShahrzad Villa / Kanisavaran Office - Image 4 of 21Shahrzad Villa / Kanisavaran Office - Exterior Photography, Balcony, ConcreteShahrzad Villa / Kanisavaran Office - More Images+ 16

Tehran, Iran
  • Architects: Kanisavaran Office
  • Area Area of this architecture project Area:  470
  • Year Completion year of this architecture project Year:  2025
  • Photographs
  • Manufacturers Brands with products used in this architecture project
    Manufacturers:  FAD, Knauf
  • Lead Architects: Mohammad Kanisavaran
More SpecsLess Specs
Shahrzad Villa / Kanisavaran Office - Exterior Photography, Balcony, Concrete
© Mohammad Hassan Ettefagh

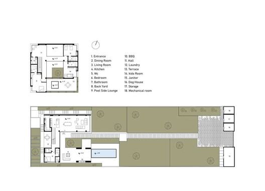
Text description provided by the architects. Nestled within the plains of Seyedabad, Damavand, this villa redefines the relationship between architecture and natural light, transforming it from a mere utility into the central protagonist of the living experience. The design orchestrates a daily performance where light, shadow, and form interact to mark the rhythm of time, offering a sanctuary of vibrant tranquility.

Content Loader

Project gallery

See allShow less
About this office
Cite: "Shahrzad Villa / Kanisavaran Office" 02 Mar 2026. ArchDaily. Accessed . <https://www.archdaily.com/1039149/shahrzad-villa> ISSN 0719-8884

You've started following your first account!

Did you know?

You'll now receive updates based on what you follow! Personalize your stream and start following your favorite authors, offices and users.