
-
Architects: DualSpace Studio
- Area: 19000 ft²
- Year: 2024
-
Photographs:TWJPTO
-
Lead Architects: YongWei Lew, Eliz Wong

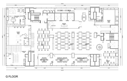
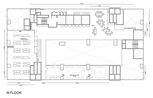
Text description provided by the architects. The entity, with each zone expressing its function while remaining visually connected through recurring wood details and rhythmic patterns. One of the primary challenges was balancing flexibility with clarity of spatial identity. The space needed to accommodate a wide range of functions — from focused work and meetings to large-scale gatherings and events — without becoming visually fragmented or programmatically confusing.































