
-
Architects: MARS Architectes
- Area: 1700 m²
- Year: 2023
-
Photographs:Charly Broyez

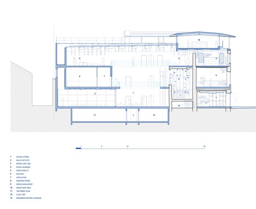
Text description provided by the architects. The creation of this cultural center stems from the need for a functional facility capable of bringing together services currently scattered throughout the town in order to better serve local residents. Located in a historic bastide now identified as an area facing social and economic challenges, the project represents a first step in the renewal of Villefranche-de-Rouergue's town center. It is conceived as an inclusive place, particularly attentive to disadvantaged populations, dedicated to sharing, education, and cultural life.































