The Gap House / Atelier TAs

The Gap House / Atelier TAs - Image 6 of 46The Gap House / Atelier TAs - Image 13 of 46The Gap House / Atelier TAs - Interior Photography, Wood, CourtyardThe Gap House / Atelier TAs - Image 3 of 46The Gap House / Atelier TAs - More Images+ 41

Dong Nai, Vietnam
  • Architects: Atelier TAs
  • Area Area of this architecture project Area:  107
  • Year Completion year of this architecture project Year:  2025
  • Photographs
    Photographs:Quang Dam
  • Lead Architects: Tuan Anh Ngo
More SpecsLess Specs
The Gap House / Atelier TAs - Image 35 of 46
© Quang Dam

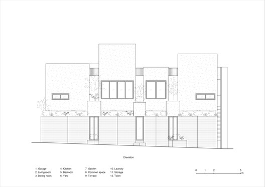
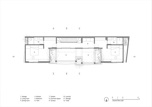
Text description provided by the architects. The project is situated on a 5×20 meter plot at the intersection of two narrow alleys—an uncommon condition within the typical urban tube-house fabric. The advantage of having two open façades allows for effective use of natural light and ventilation, while simultaneously requiring careful control of sightlines to ensure privacy. In an increasingly dense urban context, where land becomes scarce and buildings press tightly against one another, daily life is often compressed within enclosed volumes. The house is therefore not merely a shelter, but a space that creates openings for people to truly breathe. From this perspective, the "void" became the central concept shaping The Gap House.

Content Loader

Project gallery

See allShow less
About this office
Cite: "The Gap House / Atelier TAs" 25 Feb 2026. ArchDaily. Accessed . <https://www.archdaily.com/1039009/the-gap-house-atelier-tas> ISSN 0719-8884

You've started following your first account!

Did you know?

You'll now receive updates based on what you follow! Personalize your stream and start following your favorite authors, offices and users.