
-
Architects: IF Architecture
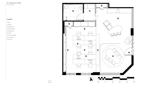
- Area: 90 m²
- Year: 2025
-
Photographs:Sharyn Cairns

Text description provided by the architects. In Collingwood, the IF Architecture Studio acts as an incubator for design ideas, a multifunctional space that expresses its experimental process and philosophies. The practical requirements of the studio are embraced as opportunities to refine existing ideas, realise previously unrealised concepts, and explore a bold point of view through vibrant colour, dynamic forms, and inventive spatial divisions.



















