
-
Architects: Groupe A
- Area: 8500 m²
- Year: 2025
-
Photographs:Adrien Williams
-
Manufacturers: Abet Laminati, Armstrong Ceilings, Centura, Formica, Gerflor, Nienkämper, Tusch seating

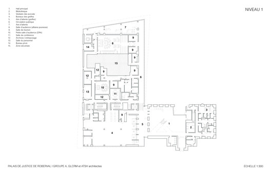
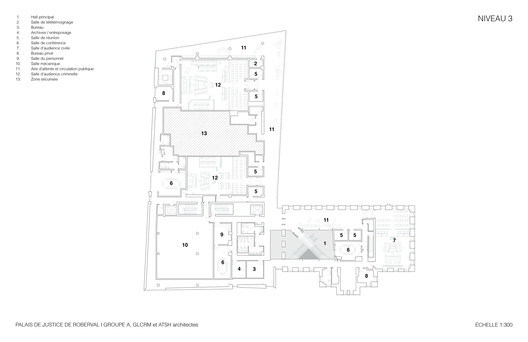
Text description provided by the architects. The Roberval Courthouse is set within an exceptional natural site, at the heart of the historic downtown, at the meeting point between a heritage urban fabric and the lakeshore landscape of Lac Saint-Jean. This context revealed both strong potential and complex challenges for the project: restoring a fragile century-old building, repairing past interventions that had severed its relationship with the lake, modernizing judicial spaces, integrating a substantial expansion without compromising the building's symbolic value, and improving accessibility and security.




























