
-
Architects: Office MI-JI
- Area: 166 m²
- Year: 2024
-
Photographs:Ben Hosking

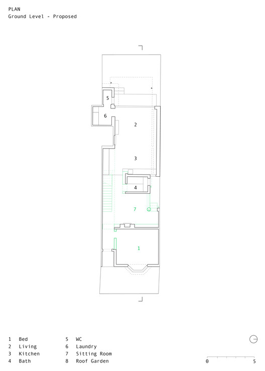
Text description provided by the architects. A renovation for another level, this addition utilises the existing steel structure to elevate two bedrooms, a bathroom, and a garden above the low-lying existing single-storey house. Responding to the expressed client brief for space, light, and air, the additional level breathes new life into the tight site without inhibiting views out across the neighbouring rooftops. Set around a multi-faceted highlight window detail, the new spaces are given the air they deserve, providing the family with a new dimension of liveability while minimising the destruction and waste of the existing building.


































