
-
Architects: MAKER architecten
- Area: 3685 m²
- Year: 2025
-
Photographs:Stijn Bollaert
-
Manufacturers: Wienerberger
-
Lead Architects: Ana Castillo, Lieven De Groote

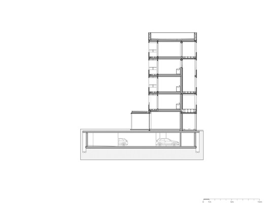
Text description provided by the architects. The project addresses a challenge shared across Europe: how can we intervene in a complex urban fabric while preserving the histories of its inhabitants and the material traces that shape it? How can one act in an "acupunctural" manner—revitalizing the city without total demolition, without starting from scratch?






















