
-
Architects: suatudio
- Area: 131 m²
- Year: 2025
-
Photographs:Tristan Salim
-
Lead Architects: Gagas Firas Silmi, Arif Rachman Hidayat, Adhietya Orlandho Putra Sunarmo

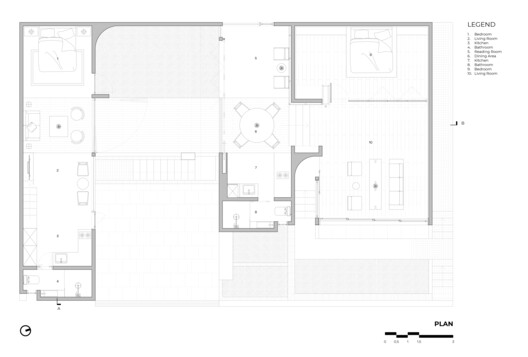
Text description provided by the architects. Rumah Tahu is a residential project located in Sumedang, Indonesia, designed for a single-family spanning two generations: an architect and his wife, and his parents. Rather than separating the household into independent buildings, the project is conceived as one architectural entity composed of two interrelated dwellings—the South Dwelling and the North Dwelling. This approach positions family relationships as the primary driver of spatial organization, rather than merely a programmatic outcome.


























