Library in Červený Kostelec / Papundekl Architects

Library in Červený Kostelec / Papundekl Architects - Exterior Photography, Door, ConcreteLibrary in Červený Kostelec / Papundekl Architects - Interior Photography, Closet, ShelvingLibrary in Červený Kostelec / Papundekl Architects - Interior Photography, Living Room, ShelvingLibrary in Červený Kostelec / Papundekl Architects - Interior Photography, Wood, ColumnLibrary in Červený Kostelec / Papundekl Architects - More Images+ 29

  • Area Area of this architecture project Area:  285
  • Year Completion year of this architecture project Year:  2025
  • Photographs
  • Manufacturers Brands with products used in this architecture project
    Manufacturers:  JUNG, ROE, Valchromat, VitrA
More SpecsLess Specs
Library in Červený Kostelec / Papundekl Architects - Exterior Photography, Door, Concrete
© Alex Shoots Buildings

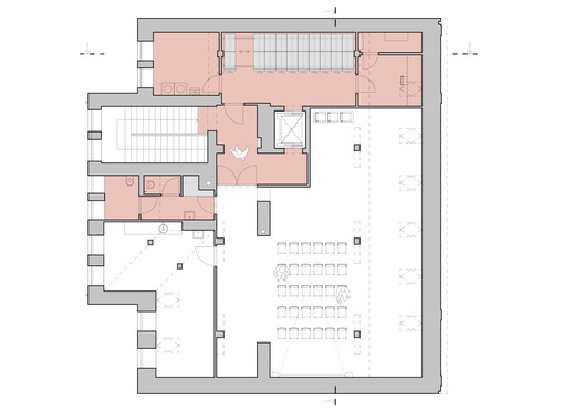
Text description provided by the architects. The Břetislav Kafka Library in Červený Kostelec transforms a historic former inn into a bright, flexible, and welcoming public library. The design works with the building's original architecture, combining tailored interiors, playful furniture, and a distinctive color palette to create a space that is both functional and inviting.

Content Loader

Project gallery

See allShow less
About this office
Cite: "Library in Červený Kostelec / Papundekl Architects" 04 Feb 2026. ArchDaily. Accessed . <https://www.archdaily.com/1038399/library-in-cerveny-kostelec-papundekl-architects> ISSN 0719-8884

© Alex Shoots Buildings

切尔韦内-科斯特莱茨图书馆 / Papundekl Architects

You've started following your first account!

Did you know?

You'll now receive updates based on what you follow! Personalize your stream and start following your favorite authors, offices and users.