
-
Architects: Taller Michoacán
- Area: 332 m²
- Year: 2025
-
Lead Architects: Johana Domínguez Valencia, Jaime Guillén Castañeda

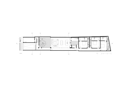
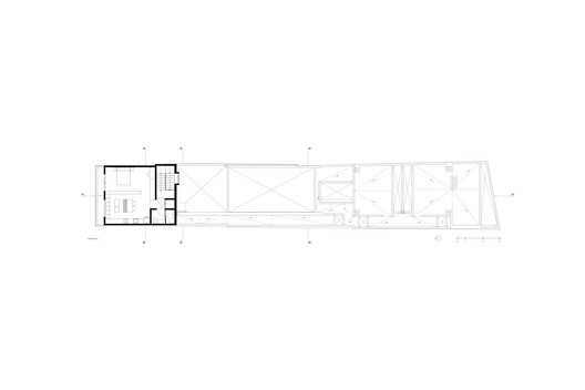
Text description provided by the architects. House A. Martínez, located in the center of Peribán de Ramos, Michoacán, is a project that proposes a simple way of living, where space accompanies daily life and architecture becomes a silent support for what is essential.



























