
-
Architects: Nobuyasu Hattori + Shota Koga
- Area: 134 m²
- Year: 2024
-
Photographs:Benjamin Hosking

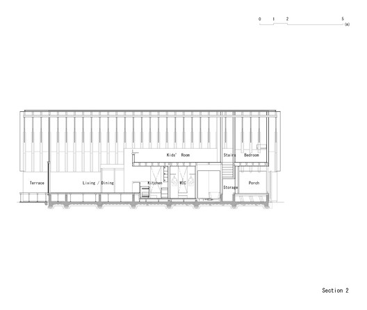
Text description provided by the architects. 1. Context – The Stable and the Orange Barn is a residential project located on a narrow flag-shaped plot in Toyohashi, Japan, surrounded by factories, nursing facilities, and suburban houses. Rather than asserting a strong formal gesture, the design began by closely observing the everyday rhythms of a young family and their relationship with the surrounding environment.







































