
-
Architects: ConCom Studio
- Area: 7931 m²
- Year: 2025
-
Photographs:Bian Lin, Ruotong Xu
-
Manufacturers: avarte
-
Lead Architects: Wang Weijie, XuLiang

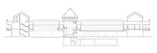
Text description provided by the architects. 7hills Yard-Hillstation Brand Center is a composite space integrating offices, exhibitions, and social functions. As an experimental ground for exploring new lifestyles, production methods, and economic models, it is dedicated to providing new types of public services for rural industry users.

















































