
-
Architects: Bard Yersin Architectes
- Area: 235 m²
- Year: 2025
-
Photographs:Willem Pab

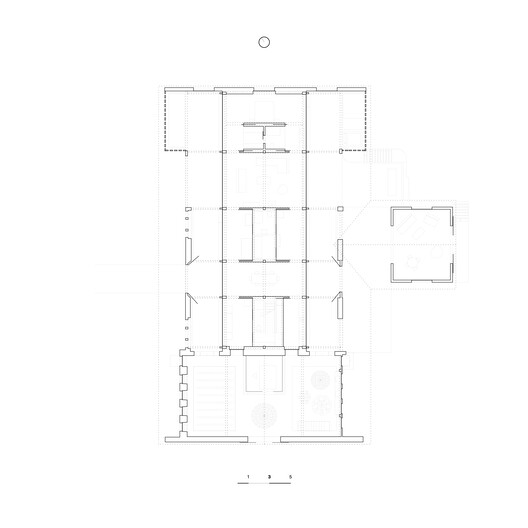
Text description provided by the architects. The project transforms a 19th-century farmhouse typical of the region, which brings together dwelling and agricultural functions beneath a single roof. Deprived of its farming use and located outside the building zone, this exceptionally large volume has become difficult to maintain given the limited habitable floor area permitted. In this context, the client's mixed housing/permaculture program represents a rare opportunity for a coherent requalification of the whole.
































