
-
Architects: Studio Kota
- Area: 637 m²
- Year: 2025
-
Photographs:Ferrian Rinaldi, Arte Haus
-
Lead Architects: Erick Kristanto

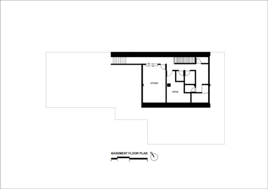
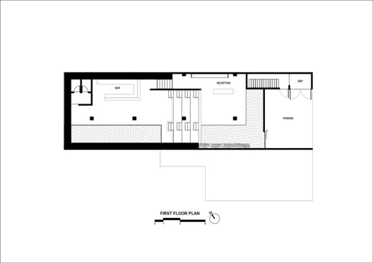
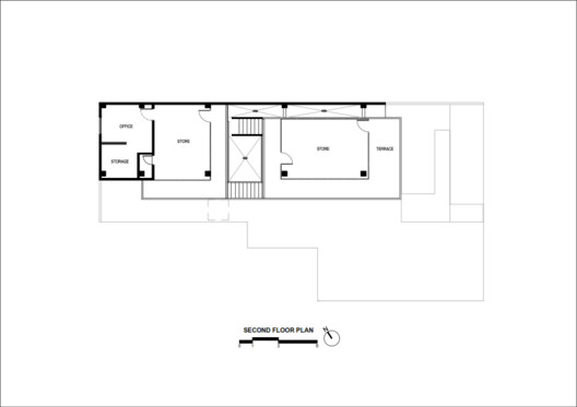
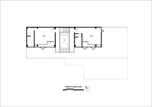
Text description provided by the architects. Mankind Studios is a compact mixed-use building located in a dense urban neighborhood in Bandung, Indonesia. The project occupies a narrow site within a lively hangout district shaped by the city's strong youth culture and creative economy. Bandung's high altitude and mountainous surroundings provide a cooler climate than most Indonesian cities, a condition that directly informs the building's spatial and environmental strategies.




































