
-
Architects: P•A•N
- Area: 250 m²
- Year: 2025
-
Photographs:Piercarlo Quecchia
-
Manufacturers: JUNG, Davide Groppi, Driade, Esperia, Flaminia, Flos, Gobetto, Nemo Lighting, OLIVARI, RUBINETTERIE TREEMME, Vitra, Zumtobel

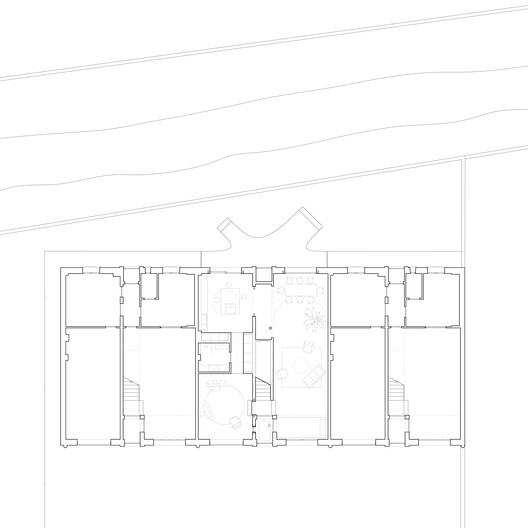
Text description provided by the architects. In Milano, on the southern edge of the city, Casa LL originates from the reuse and transformation of a postmodern office building into a private residence. The project focused on shaping the void, the space between solids, through light and through raw, abstract materials.































