
-
Architects: Estudio Libre MX
- Area: 376 m²
- Year: 2025
-
Photographs:Luis Young
-
Lead Architects: Andrés Berjón, Diego Rodriguez

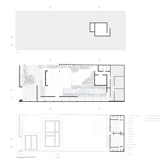
Text description provided by the architects. Located to the south of Mexico City, a residential house was designed with the goal of hosting gatherings and events — providing a space for family interaction and recreation — with a swimming lane as the main axis of the project.












