
-
Architects: Nikken Sekkei
- Area: 9889 m²
- Year: 2024
-
Photographs:Koji Yamazaki [Prise]
-
Manufacturers: Ceramic Olive Inc., Fujisash Co., Ltd, Kawashima Selkon Textiles Co., Ltd., TOLI corporation
-
Lead Architects: Nikken Sekkei Ltd

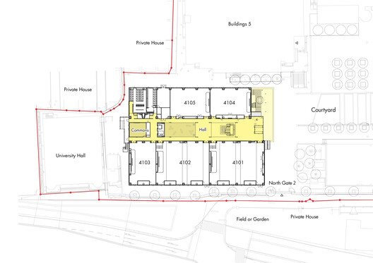
A tiered gathering place that draws students from the campus center – Steeped in history and tradition, Hannan University is a private liberal arts university celebrating its 60th anniversary in 2025, located in a lush green area along the Yamato River, to the south of central Osaka. Ahead of this milestone year, alongside a faculty reorganization, the university has advanced plans to integrate the previously separate south campus into the main campus grounds.





















