
-
Architects: Unknown Surface Studio
- Area: 450 m²
- Year: 2025
-
Photographs:Rungkit Charoenwat
-
Manufacturers: Lamptitude, Modernform, Siamtak, Timbercharm
-
Lead Architects: Cievanard Nattabowonphal, Piyanat Songkhorh, Nonglak Boonsaeng

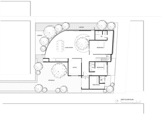
Text description provided by the architects. Amidst the restless energy of Bangkok's Ladprao district, Terrarium House sits quietly on a unique, ladle-shaped plot. With a narrow three-meter access road leading to a square site hemmed in by neighbors on all four sides, the land initially seemed landlocked. However, the design turns this constraint into its greatest asset, flipping the perspective to create an inward-looking sanctuary—a private world entirely detached from the chaos outside.


































