Red House / Pacarizi Studio

Red House / Pacarizi Studio - Exterior Photography, Brick, ConcreteRed House / Pacarizi Studio - Exterior Photography, Facade, ConcreteRed House / Pacarizi Studio - Interior Photography, Wood, ConcreteRed House / Pacarizi Studio - Exterior Photography, Concrete, CourtyardRed House / Pacarizi Studio - More Images+ 26

  • Architects: Pacarizi Studio
  • Area Area of this architecture project Area:  350
  • Year Completion year of this architecture project Year:  2025
  • Photographs
  • Manufacturers Brands with products used in this architecture project
    Manufacturers:  Alumil, Fortesa, Solos Studio
More SpecsLess Specs
Red House / Pacarizi Studio - Exterior Photography, Brick, Concrete
© Lundrim Karameta

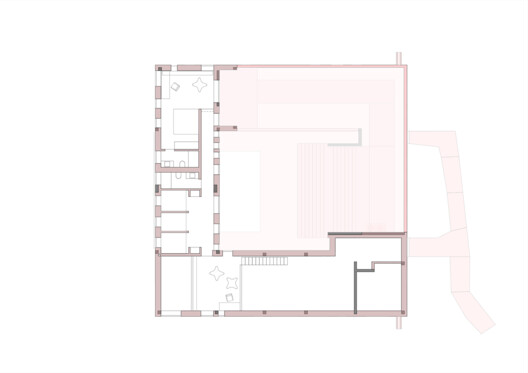
Text description provided by the architects. The house balances outside and inside, living in the garden of a coastal village. The living volume and rooms are arranged around an open court with the pool at its center. The grand stair continues the courtyard space to the roof level, opening vistas toward nearby and distant landscapes.

Content Loader

Project gallery

See allShow less
About this office
Cite: "Red House / Pacarizi Studio" 14 Jan 2026. ArchDaily. Accessed . <https://www.archdaily.com/1037708/red-house-pacarizi-studio> ISSN 0719-8884

You've started following your first account!

Did you know?

You'll now receive updates based on what you follow! Personalize your stream and start following your favorite authors, offices and users.