Meandering Furniture Villa Renovation / Atelier Tom Vanhee

Meandering Furniture Villa Renovation / Atelier Tom Vanhee - Image 2 of 22Meandering Furniture Villa Renovation / Atelier Tom Vanhee - Interior Photography, Kitchen, Wood, Lighting, Door, GlassMeandering Furniture Villa Renovation / Atelier Tom Vanhee - Interior Photography, Kitchen, Countertop, Wood, LightingMeandering Furniture Villa Renovation / Atelier Tom Vanhee - Interior Photography, Kitchen, Wood, Chair, Lighting, Table, CountertopMeandering Furniture Villa Renovation / Atelier Tom Vanhee - More Images+ 17

Bruxelles, Belgium
  • Architects: Atelier Tom Vanhee
  • Area Area of this architecture project Area:  383
  • Year Completion year of this architecture project Year:  2024
  • Photographs
    Photographs:Filip Dujardin
  • Manufacturers Brands with products used in this architecture project
    Manufacturers:  Duravit, Forbo Flooring Systems, Schluter, Delta Light, Franke, Ideal Standard, MDB metal, Novy, Siemens, Smeg, TopCer, Zangra
  • Lead Architects: Tom Vanhee
More SpecsLess Specs
Meandering Furniture Villa Renovation / Atelier Tom Vanhee - Image 2 of 22
© Filip Dujardin

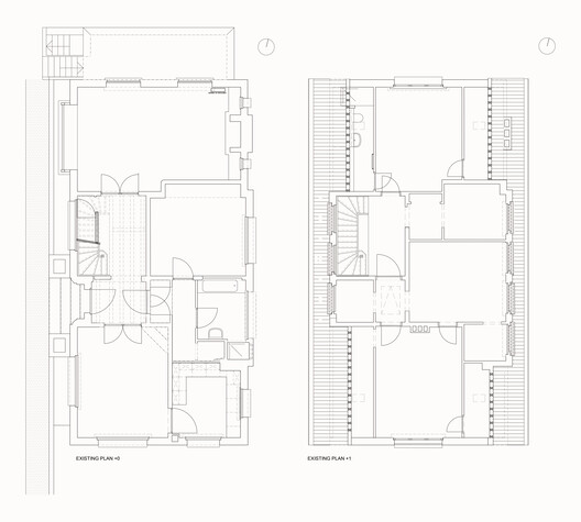
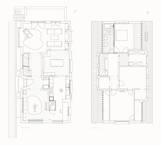
Text description provided by the architects. The renovation of the house in Brussels represents a thoughtful transformation of a traditional detached home into a vibrant and functional living space. Initially characterized by its small, dark rooms and disconnected layout, the house has an open, interconnected design that maximizes natural light and enhances everyday living.

Content Loader

Project gallery

See allShow less
About this office
Cite: "Meandering Furniture Villa Renovation / Atelier Tom Vanhee" 09 Jan 2026. ArchDaily. Accessed . <https://www.archdaily.com/1037491/meandering-furniture-villa-renovation-atelier-tom-vanhee> ISSN 0719-8884

You've started following your first account!

Did you know?

You'll now receive updates based on what you follow! Personalize your stream and start following your favorite authors, offices and users.