Karachi Steel Industries / DB Studios + Modative Design Studio

Karachi Steel Industries / DB Studios + Modative Design Studio - Image 2 of 23Karachi Steel Industries / DB Studios + Modative Design Studio - Interior Photography, ChairKarachi Steel Industries / DB Studios + Modative Design Studio - Image 4 of 23Karachi Steel Industries / DB Studios + Modative Design Studio - Exterior Photography, ConcreteKarachi Steel Industries / DB Studios + Modative Design Studio - More Images+ 18

More SpecsLess Specs
Karachi Steel Industries / DB Studios + Modative Design Studio - Image 2 of 23
© Visual Narratives

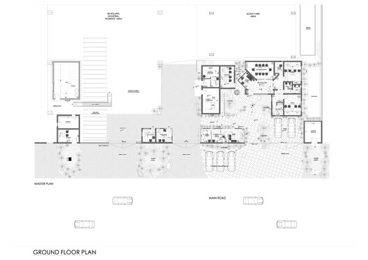
Text description provided by the architects. The Karachi Steel project reimagines a conventional industrial warehouse into a bold statement of brand identity. By using observation as the design approach, the real revealing challenge was not just to refurbish the structure but to redefine how the steel industry is perceived within its industrial setting, which presented a dense environment of noise, soot, and dust.

Content Loader

Project gallery

See allShow less
About this office
Cite: "Karachi Steel Industries / DB Studios + Modative Design Studio" 09 Jan 2026. ArchDaily. Accessed . <https://www.archdaily.com/1037490/karachi-steel-industries-db-studios-plus-modative-design-studio> ISSN 0719-8884

You've started following your first account!

Did you know?

You'll now receive updates based on what you follow! Personalize your stream and start following your favorite authors, offices and users.