
-
Architects: BIOSIS
- Area: 15000 m²
- Year: 2025
-
Photographs:Elisabeth Heier

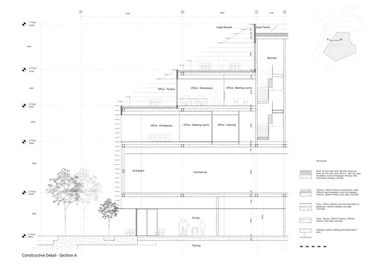
Text description provided by the architects. In Bergen - one of Europe's rainiest cities - Copenhagen-based BIOSIS has completed Lagunen II, a climate-adaptive, community-focused expansion of Norway's largest shopping centre. The 15,000-square-meter extension redefines the role of the contemporary mall by transforming it into an open, light-filled urban environment shaped directly by the coastal climate and the daily rhythms of its surrounding neighborhood.































