
-
Architects: Marge architecten
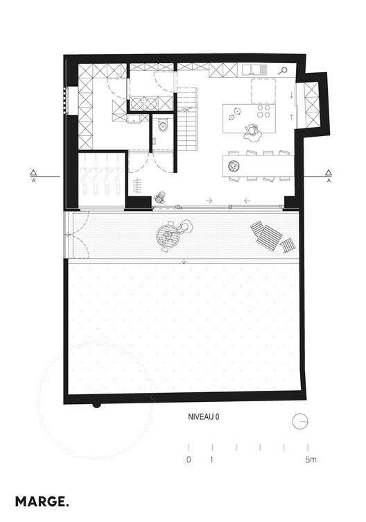
- Area: 175 m²
- Year: 2023
-
Photographs:Melanie Boeckxstaens
-
Manufacturers: Reynaers Aluminium, Grohe, RENSON, Wienerberger, Aco, Aiphone, Joris Ide, Knauf, Novy, Recticel, Ubbink, Velux

Text description provided by the architects. High grasses, two shrubs, and an oak. Somewhere in the 1970s, a row of dilapidated workers' houses had to be demolished here. Nothing remained of it, and nothing was put in its place. The current green seems to have originated accidentally. An accidental green area due to the absence of buildings, not laid out, not functional. Recently, the city decided to divide the park into parts again, and to complete the building block again.
























