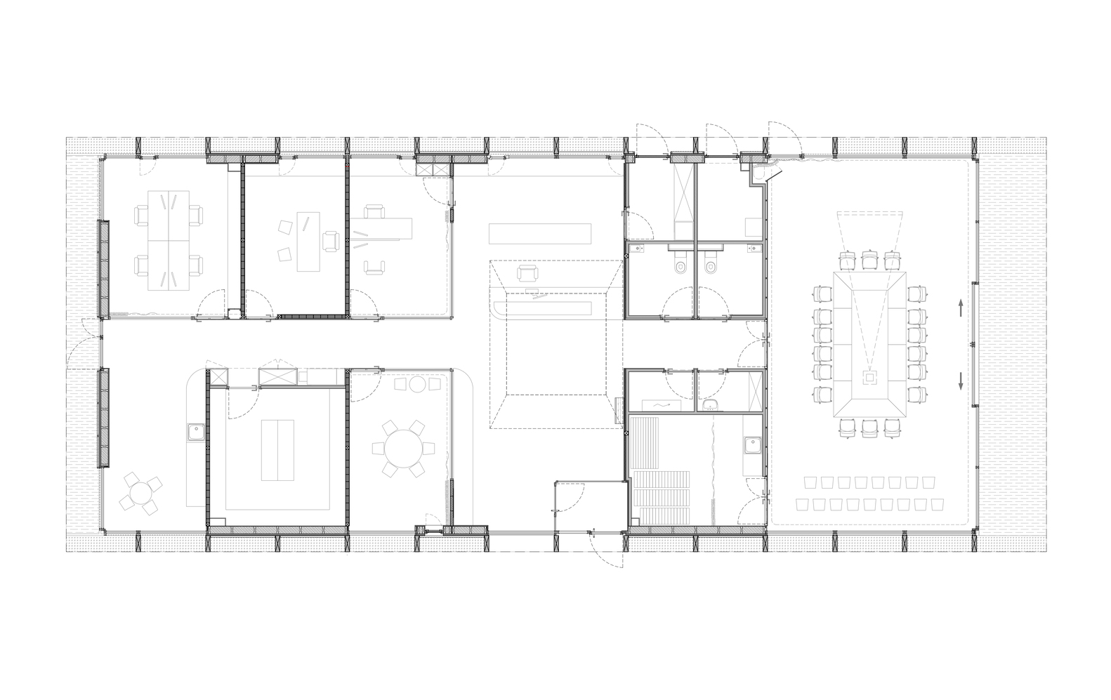
New Town Hall of Scharrachbergheim / AL PEPE architects
Zoom image
|
View original size
Share
Share
Share this image
Facebook
Twitter
Mail
Pinterest
Or
Copy URL
✕
✕